解决生产线上皮带机落料点、中转站粉尘严重问
2022-09-11 14:10
皮带输送机是使用最广泛的输送设备,具备可输送的物料种类繁多、噪音较小、物料输送平稳、运行维护费用低等特点。但是在落料点和中转过程中存在因物料落差高、含粉率大等问题,造成落料点或中转站扬尘严重等情况,导致布袋收尘器收尘效果差,无法满足工艺要求,这是很多企业头痛的问题。
随着现代化和工业化的发展进程,扬尘综合整治迫在眉睫。本文分享一种实用的抑尘装置。它充分运用了空气动力学原理和流体力学原理,具有设计新颖、结构科学、技术含量高、操作简单、除尘效果显著、无二次污染等突出特点。对布袋除尘器不能解决的粉尘量大的物料具有独特的抑尘优势。
01主要构成
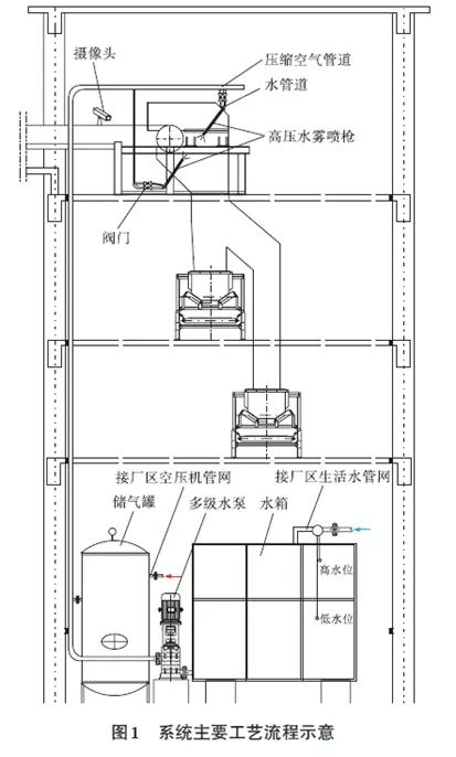
皮带输送机抑尘系统主要有:气源装置、多级加压水泵和水气管线及喷淋系统,同时配合变频调速技术等电控单元。包括:喷嘴4套、阀门4个、水气管道200m、15m³水箱1个、多级水泵1台、变频器等自动化装置1套、远程监控设施1套。系统用气来自厂区空压机气源管网,通过管道连接至本系统,并设置1m³储气罐1个;系统用水来自厂区生活水管网,通过管道连接至本系统,并设置15m³水箱1个,水位计自动控制水位。
02 工艺流程
皮带输送机抑尘系统工艺流程示意见图1,高压水气混合喷枪示意见图2。


高含粉率物料随皮带输送机运行至中转落料点处,采用高压水气对物料料幕实现穿透式充分加湿,通过水气对细小粉尘颗粒包裹,进而达到降尘目的。
03 具体做法
1)在皮带机机头罩安装喷水抑尘装置:4个高压水气混合喷枪通过法兰螺栓连接分别安装固定在皮带机下料斗及皮带机头罩上,上下各2个,呈对称布置。喷淋系统的15m³水箱、1m³储气罐及多级水泵集中布置在中转框架底部0平面,高压水气混合喷枪通过阀门及主水气管线实现上下连接。
(2)储气罐连接自厂区空压机气源管网。水箱连接厂区生活水管网,并通过水位计控制实现远程DCS自动控制模式。
(3)自动化控制:多级加压水泵电动机采用变频器控制方式,频率设置为20~50Hz。
中央控制室操作人员根据皮带输送物料含粉率不同,选用不同的水泵运行频率(采用变频器控制水泵方式),喷水雾控制采用远程DCS监控,人工干预,操作人员并通过远程摄像头,确定雾化抑尘装置投切时间。


此方法的特点:
(1)在防止和降低皮带输送机含粉尘物料运输方面有着很高的适用性和良好的抑尘效果,特别适合高含粉率物料皮带输送的抑尘。
(2)此次抑尘装置的技改要求是物料含水率不超过5%的环境下适用。
(3)系统水气压力可调,以满足不同物料扬尘浓度要求。
(4)远程DCS实现自动控制模式,操作方便。
(5)改造投资成本较低,加湿用高压水雾喷头、储气罐、水箱等合计约6.95万元。
(6)改善了工作环境,保障了员工的身体健康。减少粉尘排放对大气环境的污染。





扫一扫咨询微信客服